Villa a schiera in vendita

Anzio, Via Machiavelli - Lavinio Stazione
€ 209.000
100 Mq 100 Mq
2 bagni 2 bagni

Villa a schiera in vendita

Anzio, Via Machiavelli - Lavinio Stazione

Descrizione annuncio

PER INFO E APPUNTAMENTI CONTATTARE TECNOCASA LAVINIO 06/9815094 - 3272520822

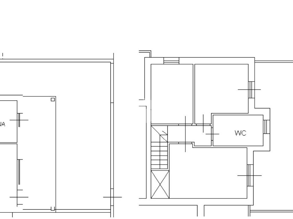
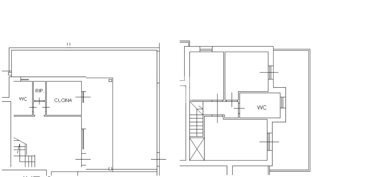
VIA MACHIAVELLI COSTRUZIONE DEL 2010!

ADIACENTE AI SERVIZI PUBBLICI COMMERCIALI E SCOLASTICI IN UN COMPRENSORIO PRIVATO DISPONIAMO DI UNA VILLA IN CORTINA SU DUE LIVELLI. ENTRANDO DAL CANCELLO CARRABILE DOVE E' POSSIBILE PARCHEGGIARE DUE AUTO ALL' INTERNO OLTRE AL POSTO AUTO ASSEGNATO ALLA VILLA, TROVIAMO UNA COMODA VERANDA SERVITA DA TENDE DA SOLE, ENTRANDO TROVIAMO UN AMPIA SALA, CUCINA, RIPOSTIGLIO E BAGNO CON DOCCIA. SALENDO AL PIANO PRIMO CI ACCOGLIE UN DISIMPEGNO, DUE CAMERE CON ACCESSO SUL TERRAZZO, CAMERETTA E BAGNO CON VASCA. LA VILLA E' DOTATA DI INFERRIATE A TUTTE LE FINESTRE, ZANZARIERE, TERMOAUTONOMA. COMPLETA LA PROPRIETA' UNO SPAZIO ESTERNO CON CASETTA IN LEGNO CHE FUNGE DA RIPOSTIGLIO. OTTIMA SOLUZIONE COME PRIMA CASA LA VILLA SI PRESENTA IN OTTIME CONDIZIONI.

Mostra tutto

Nelle vicinanze

Trasporto pubblico Trasporto pubblico
Lavinio
Lavinio
900 m
Villa Claudia
Villa Claudia
1,4 Km
Ricariche auto elettriche Ricariche auto elettriche
Centro Anthos Ii
1,2 Km
Scuole Scuole
Scuola Primaria "Carlo Collodi"
120 m
Scuola Secondaria di I grado "Virgilio"
850 m
Istituto Professionale Alberghiero "Marco Gavio Apicio" - Succursale
1,4 Km
Scuola Primaria "Ivana Gregoretti"
1,7 Km
Scuola Primaria "Gianni Rodari"
2,3 Km
Farmacia Farmacia
Farmacia Farfarelli
2,4 Km
Supermercati Supermercati
Conad
1,0 Km
Mattioli
2,9 Km
In's
3,0 Km
Bar Bar
Flory
2,4 Km
Ristoranti Ristoranti
A Tutto Pesce
1,4 Km
El Brasero
1,4 Km
Villa Rugantino
1,6 Km
Pizzamore
2,3 Km
La Torre
2,5 Km
Mostra tutto

Caratteristiche

Rif.:
61136529
Piano:
Terra con giardino
Posti auto:
3
Camere da letto:
3
Condizionamento:
Autonomo
Ascensore:
No
Mostra tutto
Prezzo Prezzo
€ 209.000
Rata mutuo Rata mutuo
€ 987 / mese
Proponi il tuo prezzoProponi il tuo prezzo

Classe Energetica

Questo immobile è esente da classe energetica
Anno di costruzione:
2010
Riscaldamento:
Autonomo
Tipo impianto:
A radiatori
Tipo alimentazione:
Metano

Ti interessa visionare l'immobile?

Fissa un appuntamento  Fissa un appuntamento

Richiedi informazioni

Clicca su Leggi per aprire l'informativa
* Questi campi sono obbligatori

Calcola il tuo mutuo

Semplice e senza impegno
Anticipo

( % )
Mutuo

( % )

pochi semplici passi

inserisci i tuoi dati
Questionario completato
Grazie per aver richiesto un appuntamento senza impegno con un nostro Consulente del Credito e Assicurativo.

Hai inserito correttamente tutti i dati necessari e a breve riceverai una e-mail con un link da convalidare per inviare i tuoi dati.
Affiliato
Immobiliare Anzio Marechiaro Srls
Via Marconi, 27 00042 Anzio (RM)

Il nostro staff


  • Costantino Cocco
    Affiliato

  • Beatrice De Angelis
    Coordinatrice

  • Vittoria Filice
    Affiliata

  • Luciano Simone Mirabella
    Collaboratore
Via Marconi, 27 00042 Anzio (RM)
Zona: Anzio Marechiaro
Mostra su mappa
Affiliato
Immobiliare Anzio Marechiaro Srls
Via Marconi, 27 00042 Anzio (RM)

2025 Tecnocasa Franchising S.p.A. - P. IVA 08365160152 - Via Monte Bianco 60/A 20089 Rozzano (MI). Ogni agenzia ha un proprio titolare ed è autonoma. Privacy policy | Policy utilizzo | Cookie policy