Villa a schiera in vendita

Anzio, Via Ardeatina - Lavinio-Lido Di Enea
€ 139.000
3 locali 3 locali
75 Mq 75 Mq
2 bagni 2 bagni

Villa a schiera in vendita

Anzio, Via Ardeatina - Lavinio-Lido Di Enea

Descrizione annuncio

PER VISIONARE L’IMMOBILE CONTATTARE 06/9815094 – 3272520822 TECNOCASA LAVINIO

LAVINIO MARE VIA ARDEATINA

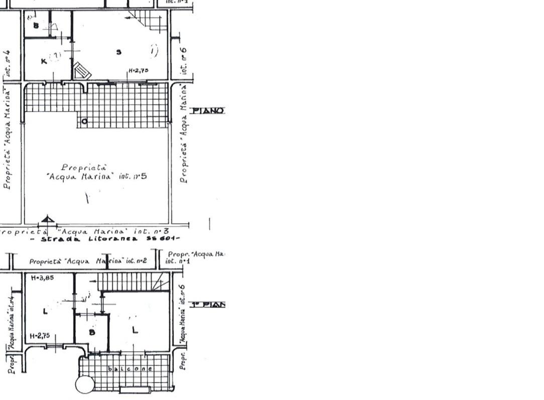
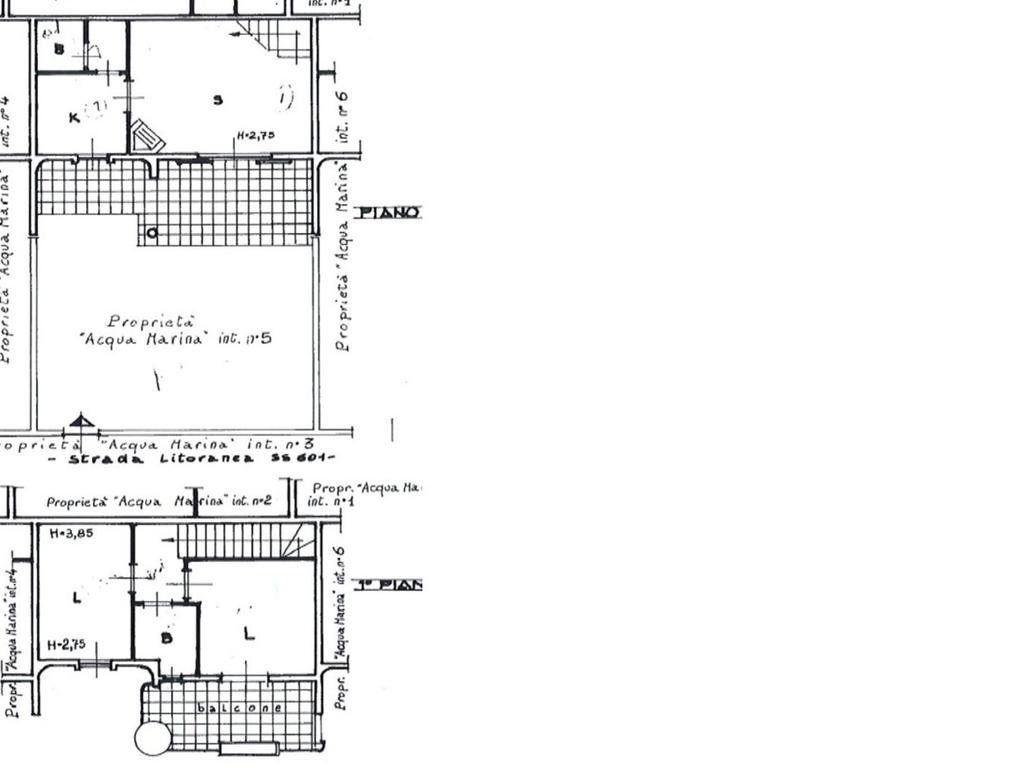
A circa 300 mt dal mare, adiacente i servizi commerciali e a pochi passi dalla fermata del Cotral disponiamo di una villino a schiera su due livelli senza condominio

Al piano terra troviamo soggiorno con camino e cucina semi abitabile, entrambi gli ambienti hanno accesso diretto al giardino pavimentato di 60 mq circa e veranda con tende da sole. Proseguendo all’interno antibagno con attacco per gli scarichi dell’acqua e bagno di servizio. Al piano superiore disimpegno, camera matrimoniale sevita da balcone attrezzato con tende da sole, cameretta e bagno con doccia.

Completano la proprieta’ un posto auto esterno, infissi in pvc doppio vetro, zanzariere, grate in ferro, condizionatori, pavimentazione esterna rifatta nel 2021, predisposizione per metano diretto e impianto elettrico rifatto nel 2010.

L’immobile grazie alle sue caratteristiche e vicinanza ai servizi di prima necessita’ puo’ essere vissuto come prima abitazione ma anche come seconda casa grazie alla breve distanza dal mare.

PER VISIONARE L’IMMOBILE CONTATTARE 06/9815094 – 3272520822 TECNOCASA LAVINIO

Mostra tutto

Nelle vicinanze

Scuole Scuole
Scuola Primaria "Gianni Rodari"
720 m
Istituto Professionale Alberghiero "Marco Gavio Apicio" - Succursale
1,7 Km
Scuola Primaria "Carlo Collodi"
2,9 Km
Farmacia Farmacia
Farmacia Farfarelli
880 m
Supermercati Supermercati
Mattioli
60 m
In's
130 m
Negozi Negozi
Mini Market
3,0 Km
Bar Bar
Flory
850 m
Ristoranti Ristoranti
Il Giardino degli Aranci
80 m
La Torre
2,0 Km
Ristoranti
3,0 Km
Mostra tutto

Caratteristiche

Rif.:
61136455
Piano:
Terra di 2
Totale piani:
2
Posti auto:
1
Balconi:
1
Camere da letto:
2
Mostra tutto
Prezzo Prezzo
€ 139.000
Rata mutuo Rata mutuo
€ 656 / mese
Proponi il tuo prezzoProponi il tuo prezzo

Classe Energetica

Questo immobile è esente da classe energetica
Anno di costruzione:
1980
Riscaldamento:
Autonomo
Tipo impianto:
A radiatori
Tipo alimentazione:
Metano

Ti interessa visionare l'immobile?

Fissa un appuntamento  Fissa un appuntamento

Richiedi informazioni

Clicca su Leggi per aprire l'informativa
* Questi campi sono obbligatori

Calcola il tuo mutuo

Semplice e senza impegno
Anticipo

( % )
Mutuo

( % )

pochi semplici passi

inserisci i tuoi dati
Questionario completato
Grazie per aver richiesto un appuntamento senza impegno con un nostro Consulente del Credito e Assicurativo.

Hai inserito correttamente tutti i dati necessari e a breve riceverai una e-mail con un link da convalidare per inviare i tuoi dati.
Affiliato
Immobiliare Anzio Marechiaro Srls
Via Marconi, 27 00042 Anzio (RM)

Il nostro staff


  • Costantino Cocco
    Affiliato

  • Beatrice De Angelis
    Coordinatrice

  • Vittoria Filice
    Affiliata

  • Luciano Simone Mirabella
    Collaboratore
Via Marconi, 27 00042 Anzio (RM)
Zona: Anzio Marechiaro
Mostra su mappa
Affiliato
Immobiliare Anzio Marechiaro Srls
Via Marconi, 27 00042 Anzio (RM)

2025 Tecnocasa Franchising S.p.A. - P. IVA 08365160152 - Via Monte Bianco 60/A 20089 Rozzano (MI). Ogni agenzia ha un proprio titolare ed è autonoma. Privacy policy | Policy utilizzo | Cookie policy